韦神微博晒结婚证公布婚讯,微笑无辜中枪,网友:我的青春又没了
2025-07-05 15:10:13
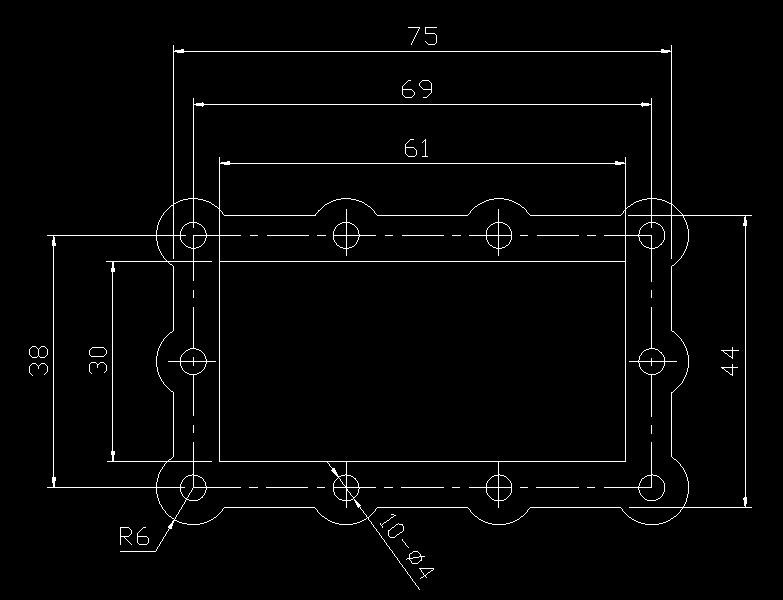
CAD图纸不会画?300张CAD基础练习图纸汇总,从基础开始超详细
CAD是计算机辅助设计,是指利用计算机及其图形设备帮助设计人员进行设计工作。平面图还是立体图都可以绘制,是现在工程人常用的绘图方式之一。
今天整理了300张CAD基础练习图纸汇总,常用到的图形图案、标注样式、常用符号都包含,内容丰富,由简到繁,步骤详细,能够帮助工程人快速掌握CAD绘图技巧,能大大提高工作效率。









CAD图纸不会画?300张CAD基础练习图纸汇总,17章300多张,整理的非常到位,能够帮助工程人练习CAD命令技巧的基本功,CAD绘图必备!

2025-07-05 15:10:13
2025-07-05 15:07:59
2025-07-05 15:05:45
2025-07-05 15:03:30
2025-07-05 15:01:16
2025-07-05 14:59:02
2025-07-05 14:56:47
2025-07-05 14:54:33
2025-07-05 14:52:19
2025-07-05 14:50:05
2025-07-05 14:47:50
2025-07-05 14:45:36
2025-07-05 14:43:22
2025-07-05 14:41:08
2025-07-05 14:38:53
2025-07-05 14:36:39
2025-07-05 09:39:52
2025-07-05 09:37:37
2025-07-05 09:35:22
2025-07-05 09:33:07